Pourquoi faire appel à un architecte d’intérieur avant de voir un cuisiniste ?
Avant de rencontrer un cuisiniste, un architecte d’intérieur comme Maison Mojo t’aide à concevoir une cuisine sur mesure, cohérente et fonctionnelle, adaptée à ton espace et à ton mode de vie.
Maison Mojo
2/27/20262 min read


Pourquoi faire appel à un architecte d’intérieur avant de voir un cuisiniste ?
Refaire sa cuisine, c’est un vrai projet !
Et avant de pousser la porte d’un cuisiniste, il y a une étape essentielle souvent oubliée : faire appel à un architecte d’intérieur.
Chez Maison Mojo, je viens sur place pour observer la pièce, comprendre ton mode de vie et imaginer une cuisine qui s’intègre parfaitement à ton intérieur. Voici pourquoi cette approche change tout .
1. Une vision d’ensemble de ton intérieur
Le cuisiniste pense “meubles et électroménager”.
L’architecte d’intérieur pense espace, circulation, lumière et harmonie globale.
Je regarde comment la cuisine dialogue avec le salon, la salle à manger ou l’entrée, pour créer une cohérence esthétique et fonctionnelle.
C’est ce regard global qui fait toute la différence.
2. Un projet ancré dans la réalité… de ton espace
Chaque maison est unique : murs pas tout à fait droits, ouvertures mal placées, contraintes techniques imprévues…
En venant directement chez toi, je peux :
Prendre les mesures exactes,
Observer la lumière naturelle,
Comprendre ton usage quotidien de la pièce.
Tout cela permet de concevoir une implantation juste et fluide, que le cuisiniste pourra ensuite concrétiser dans le détail.
3. Une cuisine pensée sur mesure (vraiment)
Mon rôle est de personnaliser ton espace :
créer un coin repas adapté à ta famille,
ajouter un claustra ou une verrière,
optimiser les rangements sans alourdir la pièce,
harmoniser les matériaux et les couleurs.
Résultat : une cuisine unique, fonctionnelle et esthétique, parfaitement intégrée à ton intérieur.
4. Un projet clair avant de voir le cuisiniste
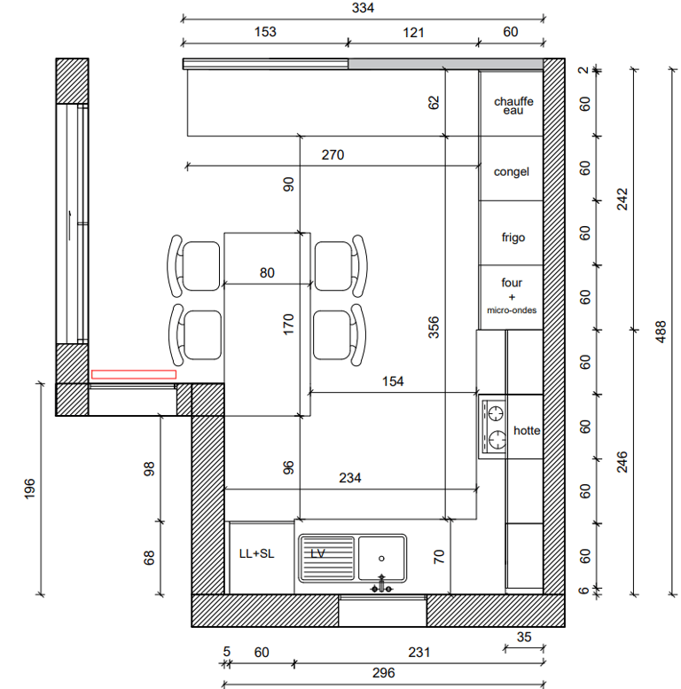
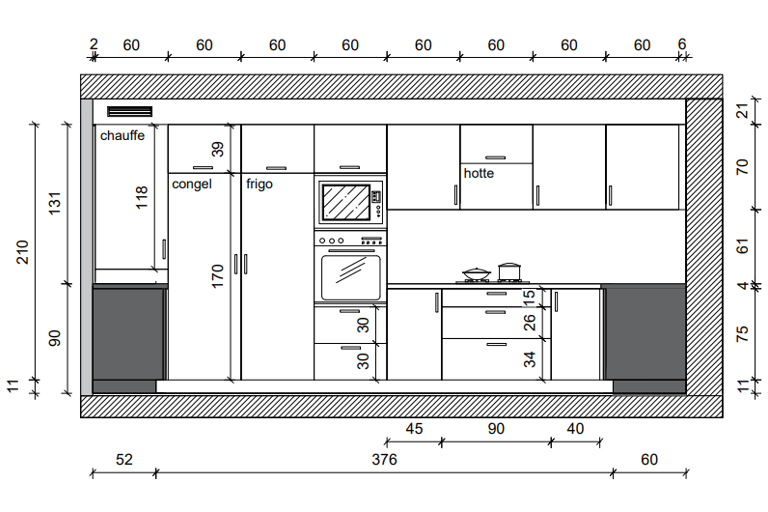
Grâce aux plans 2D et 3D que je réalise, tu visualises ta future cuisine avant même de rencontrer un cuisiniste.
Tu arrives avec un projet réfléchi, cohérent et réalisable — un vrai gain de temps et d’efficacité !
En résumé
Faire appel à un architecte d’intérieur avant un cuisiniste, c’est :
✅ Une vision globale de ton intérieur
✅ Un projet adapté à ta maison réelle
✅ Une conception sur mesure et cohérente
✅ Une préparation optimale pour ton rendez-vous cuisiniste
Envie de repenser ta cuisine ?
Je viens chez toi pour t’aider à imaginer une cuisine qui te ressemble, harmonieuse et fonctionnelle.
💡 Commence par un coaching déco d’1h à domicile pour poser les bases de ton projet !
👉 Contacte-moi ici pour réserver ton rendez-vous.






© 2025. All rights reserved.
maud@maisonmojo.fr
